Амурский квартал
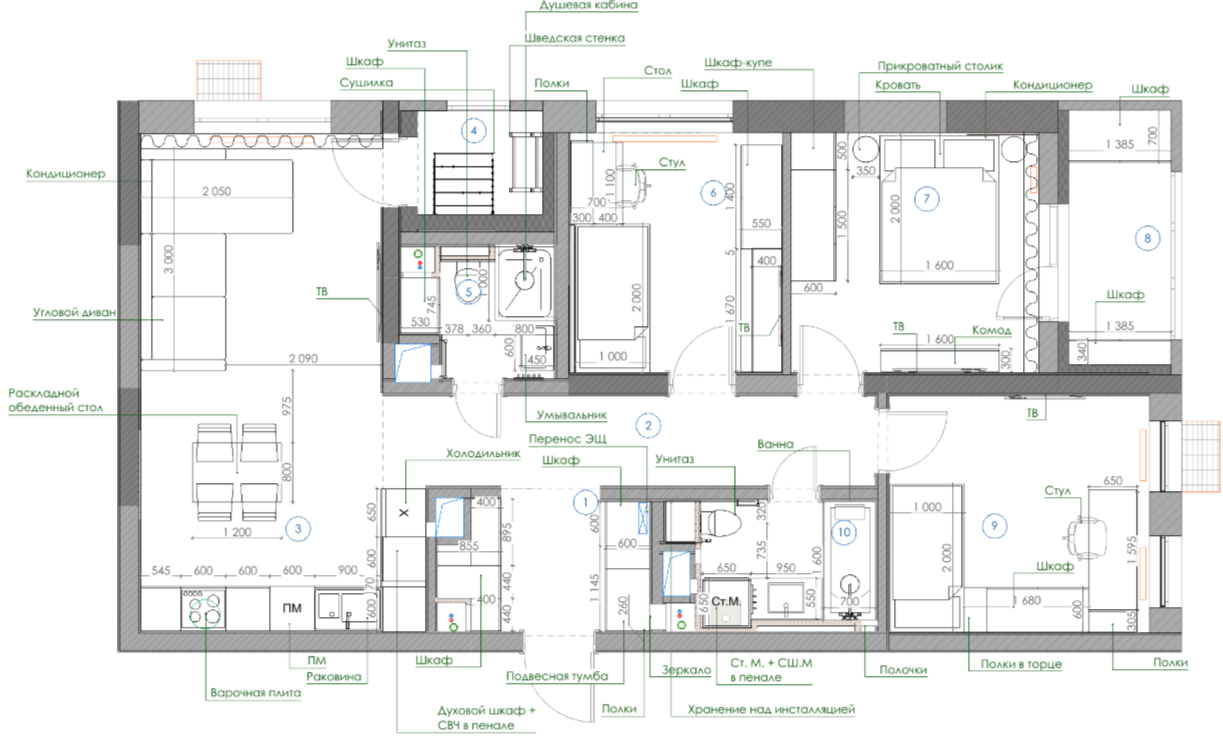
Стильная монохромная квартира с акцентами, 90 м2 в г. Хабаровск
Реализация проекта: 2024 г
Город: Хабаровск
Площадь: 90 м2
Авторы: Морева Надежда, Драчева Вероника, Огай Виктория
Задача
Создать современный интерьер в монохромной гамме для просторной квартиры 90 м². Основные пожелания — стильная, лаконичная и функциональная атмосфера, в которой каждая деталь продумана для уюта и комфорта.
Создать современный интерьер в монохромной гамме для просторной квартиры 90 м². Основные пожелания — стильная, лаконичная и функциональная атмосфера, в которой каждая деталь продумана для уюта и комфорта.
Решение
Мы разработали интерьер в спокойной цветовой палитре, дополнив её акцентами, подчёркивающими уникальность пространства. Особое внимание уделили гармонии между мебелью, отделочными материалами и световыми сценариями. Каждое решение было тщательно выверено с точки зрения эргономики и общей эстетики.
Мы разработали интерьер в спокойной цветовой палитре, дополнив её акцентами, подчёркивающими уникальность пространства. Особое внимание уделили гармонии между мебелью, отделочными материалами и световыми сценариями. Каждое решение было тщательно выверено с точки зрения эргономики и общей эстетики.
Результат
Интерьер получился элегантным и функциональным: пространство легко адаптируется под повседневную жизнь и остаётся стильным. Клиенты получили уникальный дизайн, который отражает их вкус и создаёт ощущение уюта и гармонии в доме.
Интерьер получился элегантным и функциональным: пространство легко адаптируется под повседневную жизнь и остаётся стильным. Клиенты получили уникальный дизайн, который отражает их вкус и создаёт ощущение уюта и гармонии в доме.
До
После
Ответьте на 5 вопросов для оценки стоимости вашего проекта
Это наш Telegram-бот Moreva space
Он помогает разобраться с ремонтом или дизайном:
✅ Ответить, во сколько обойдётся ремонт в вашей планировке
✅ Подсказать, какие материалы лучше выбрать
✅ Рассчитать предварительную смету
✅ Помочь выбрать мебель и технику под бюджет
✅ Дать рекомендации по зонированию и планировке
✅ Расскажет, какие ошибки чаще всего допускают дольщики
✅ Ответить, во сколько обойдётся ремонт в вашей планировке
✅ Подсказать, какие материалы лучше выбрать
✅ Рассчитать предварительную смету
✅ Помочь выбрать мебель и технику под бюджет
✅ Дать рекомендации по зонированию и планировке
✅ Расскажет, какие ошибки чаще всего допускают дольщики
Переходи в бота и получи чек- лист: 10 ошибок в ремонте, которые могут удорожать проект в 2 раза ( и как их избежать)