Амурский квартал
Квартира 60 м2 в современном стиле в темно зеленых оттенках в
г. Хабаровск
г. Хабаровск
Реализация проекта: 2023 г
Город: Хабаровск
Площадь: 60 м2
Авторы: Морева Надежда, Авдеева Лизавета
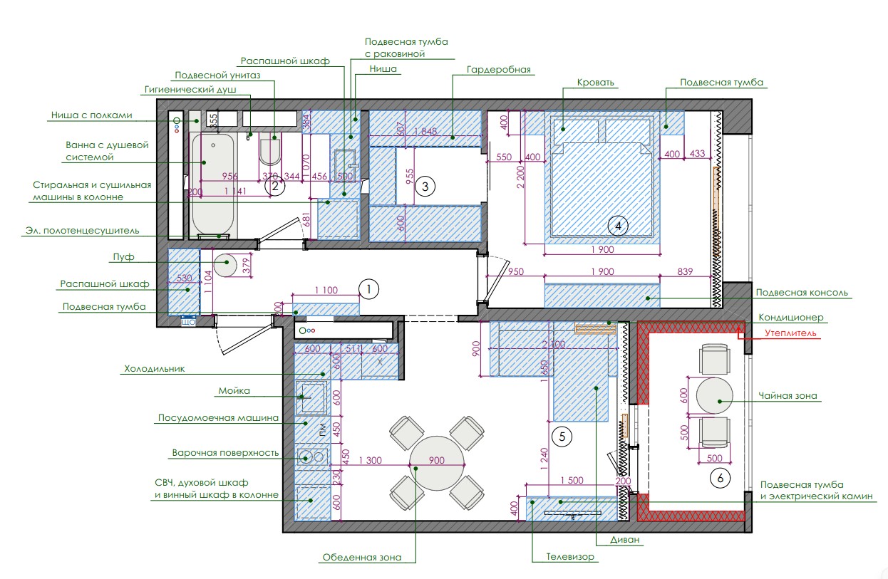
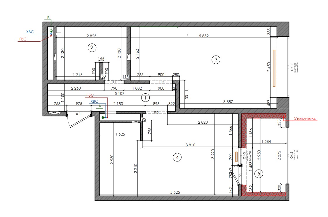
Задача
Сделать современный интерьер для молодой семьи, избегающей хаоса стройки. Основное пожелание — уютное пространство, где функциональность и эстетика будут сбалансированы.
Сделать современный интерьер для молодой семьи, избегающей хаоса стройки. Основное пожелание — уютное пространство, где функциональность и эстетика будут сбалансированы.
Решение
Мы выбрали глубокие зелёные оттенки для создания спокойной атмосферы, встроенные системы хранения и лаконичную мебель для лёгкости восприятия. Каждый элемент был выверен с точки зрения эргономики и психологии пространства.
Мы выбрали глубокие зелёные оттенки для создания спокойной атмосферы, встроенные системы хранения и лаконичную мебель для лёгкости восприятия. Каждый элемент был выверен с точки зрения эргономики и психологии пространства.
Результат
Семья получила интерьер, который совпал с визуализациями на 98% и стал комфортным местом для жизни. Проект был реализован в срок и без перерасхода бюджета.
Семья получила интерьер, который совпал с визуализациями на 98% и стал комфортным местом для жизни. Проект был реализован в срок и без перерасхода бюджета.
До
После
Ответьте на 5 вопросов для оценки стоимости вашего проекта
Это наш Telegram-бот Moreva space
Он помогает разобраться с ремонтом или дизайном:
✅ Ответить, во сколько обойдётся ремонт в вашей планировке
✅ Подсказать, какие материалы лучше выбрать
✅ Рассчитать предварительную смету
✅ Помочь выбрать мебель и технику под бюджет
✅ Дать рекомендации по зонированию и планировке
✅ Расскажет, какие ошибки чаще всего допускают дольщики
✅ Ответить, во сколько обойдётся ремонт в вашей планировке
✅ Подсказать, какие материалы лучше выбрать
✅ Рассчитать предварительную смету
✅ Помочь выбрать мебель и технику под бюджет
✅ Дать рекомендации по зонированию и планировке
✅ Расскажет, какие ошибки чаще всего допускают дольщики
Переходи в бота и получи чек- лист: 10 ошибок в ремонте, которые могут удорожать проект в 2 раза ( и как их избежать)